华灿光明城市
新盘
访问人数:281979团购人数:385评论:87我要评论 |查看评论
周边楼盘推荐
  • 物业类别:住宅、商铺、
  • 项目区位:平顶山卫东区
  • 项目特色:光明城市,点亮一座城!
  • 建筑类型:小高层、高层、
  • 装修状况:毛坯房
  • 项目地址:平安大道与新华路交叉口西北角
  • 交通状况:6路、35路、37路等多条公交路线
  • 投资商:河南华灿置业有限公司
  • 交房时间
  • 开发商:河南华灿置业有限公司
  • 容积率:0
  • 物业费
  • 绿化率:0 %
  • 总建筑面积:480000 平方米
  • 物业公司
  • 预售许可证:办理中或收集中… [更多楼盘预售信息>>]
  • 楼市网服务热线:15137500529;18639005110
河南楼市
华灿光明城市详细介绍
  • 项目概况
  • 项目简介
  • 项目五证
  • 社区配套
  • 周边配套
  • 交房标准
  • 相关信息
  • ·项目名称:华灿光明城市
  • ·项目地址:平安大道与新华路交叉口西北角
  • ·开发单位:河南华灿置业有限公司
  • ·建筑形态:小高层、高层、
  • ·物业类型:住宅、商铺、
  • ·主宣传语:光明城市,点亮一座城!
  • ·规划设计:景观设计:贝尔高林(香港)景观设计有限公司 规划设计:加拿大B+H建筑设计咨询公司 营销代理:北京弘宸伟业房地产经纪有限公司
  • ·建筑单位:
  • ·监理单位:
  • ·总占地面积:230 亩
  • ·总建筑面积:480000 平方米
  • ·绿化率:0 %
  • ·容积率:0
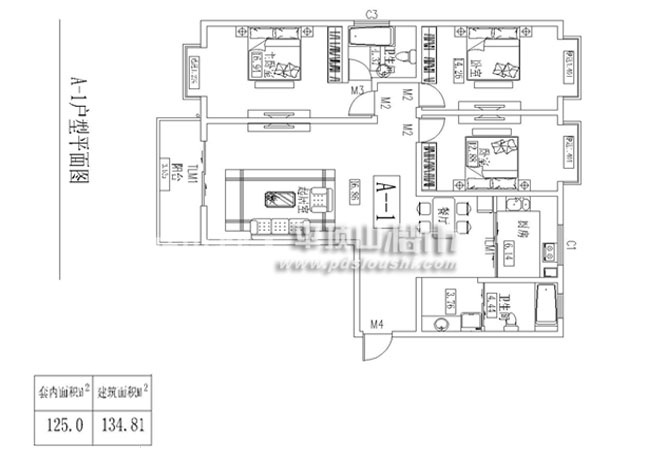
  • ·主力户型:三房两厅、四房两厅、五房两厅
  • ·物业管理:
  • ·收费标准:
“华灿光明城市”是华灿置业的开山之作,是由河南华灿置业有限公司投资建设,加拿大B+H建筑咨询公司设计规划,贝尔高林(香港)景观设计有限公司设计。华灿置业作为高品质生活营造商,我们的核心就是专筑人的环境,开辟鹰城高端房地产新领域。
    “华灿光明城市”占据山顶公园板块稀缺地段,坐落于新华路与平安大道交叉口,与山顶公园隔街相望,区域配套成熟,超市、商场、餐饮娱乐、小学、中学、幼儿园一应俱全。
    “华灿光明城市”占地230亩,总建筑面积48万平方米。 “华灿光明城市”在建筑上极具考究,精选世界风靡的ArtDeco建筑风格,萃取世界高贵血统的质感--石材干挂与真石漆的完美结合,充分演绎建筑价值,从根本上颠覆传统建筑形态的固有模式,更精准表达格调人士对于生活的品位与专注态度。
    “华灿光明城市”通过调查走访以及科学分析,最终全部采用11层亲地建筑,将建筑最大化的延伸到自然,演绎真正热爱都市的生活哲学,创造一座丰盛完美的生活之城!
    100年,在这里只是一个开始!在景观建设中,“华灿光明城市”不惜花费巨资采用同纬度全冠移植技术,进行大面积成树移植!引入更多名贵珍稀树种,全面升级为“五重垂直立体绿化生态社区”,让整个社区景观源于自然而胜于自然。
    服务是一种精神与文化的至高享受,更是维系光明城市与业主关系的亲情纽带。我们特别邀请万科金牌物业顾问,专业的智能化配套,红外线、24小时电子巡更和监控、楼宇门可视对讲,完善的安全体系有效保障您居家的安全,以完善的管理经验,为光明城市的业主定制与其身份相当的专属生活。
    社区全部采用独立的封闭式的智能管理,对小区的外围防范及室内防范都做了双重智能监控,确保入住本项目小区的业主的安全与舒适。尊重您的隐私权,更提供您完全的安全感,持续致力于美化建筑空间环境,定期升级各项配套设施,并以“以客为尊”的贴心服务,让居住在社区里的业主享到温馨的物业管理服务。
  • ·国有土地使用证:资料整理中...
  • ·建设用地规划许可证:资料整理中...
  • ·建设工程规划许可证:资料整理中...
  • ·建筑工程施工许可证:资料整理中...
  • ·商品房预售许可证:资料整理中...
在规划过程中,“光明城市”专筑人的环境,运用人、自然、建筑三者和谐共生的设计手法,本着以自然为本的原则,打造11层亲地空间,呈现平顶山前所未有的自然健康生活方式。小区拥有2个7000平米的中心绿地广场、欧式皇家园林、 停车场、公共绿地、景观等基础设施及学校、幼儿园、医院、活动中心等公共设施,无疑是您最好的休憩地。
离市中心仅2.7公里,丹尼斯、万家百货、鹰城世贸等大型购物场所,5分钟商圈随意切换,即刻抵达生活挚爱所在。
    拥有内外双重优居配套、星级酒店、40000㎡购物广场并与众多学校一步之遥,坐拥城市中心资源,使您不出小区便可享受一站式购物,快捷带来的便捷,为您的生活、学习、商务办公提供最齐全和高档的配套,有效提升区域价值!
毛坯房
价格档案
日期价格说明
  • 2016-08-054700元/㎡均价
  • 2016-04-064700元/㎡均价
  • 2016-03-034700元/㎡均价
  • 2016-02-204700元/㎡均价
  • 2016-01-074700元/㎡均价
  • 2015-12-104700元/㎡均价
  • 2015-11-054700元/㎡均价
  • 2015-10-144600元/㎡均价
  • 2015-09-164600元/㎡均价
  • 2015-08-154600元/㎡均价
  • 2015-07-164700元/㎡均价
  • 2015-06-184700元/㎡均价
  • 2015-05-194700元/㎡均价
  • 2015-04-184400元/㎡均价
  • 2015-03-174400元/㎡均价
  • 2015-02-164400元/㎡均价
团购信息
姓名户型面积日期
  • 杨女士3室100~120㎡2017-09-29
华灿光明城市图片欣赏
  • 意向楼盘:意向户型:
  • 意向面积:意向房款:
  • 您的姓名:性    别:
  • 联系电话:您的QQ号:
  • 详细要求:(500字以内) 验证码:看不清?点一下
楼盘相关评论已有87条评论(点击查看)
  • - 87 - 网友|2014/12/30 8:40:00
    我买的房在那里,山顶公园也要搞旅游了,后马路以后也不过大车了。环境会号的。
  • - 86 - 晨晨|2014/12/19 19:49:00
    房子还可以吧,我已经在那买了。
  • - 85 - 孔女t士|2014/10/8 20:56:00
    有五证齐全吗/快快
  • - 84 - 走你|2014/3/1 11:28:00
    我已经在那买房了,就是他南边咋还不动工,要是等到入住岂不是吵死人了
  • - 83 - 走你|2014/3/1 11:27:00
    我已经在那买房了,就是他南边咋还不动工,要是等到入住岂不是吵死人了
  • - 82 - 走你|2014/3/1 11:25:00
    我已经在那买房了,就是他南边咋还不动工,要是等到入住岂不是吵死人了
  • - 81 - 房地产群109401117|2014/2/12 16:50:00
    这的房子不错啊,要说脏平顶山哪都脏,平顶山买卖房地产群109401117
  • - 80 - 月儿|2014/2/12 10:26:00
    位置好什么,都到山顶了,坐车也不方便,都是炒房吵得,什么破位置,
  • - 79 - 房源|2014/2/4 19:41:00
    以前四千五年前涨价了,4600多了,不过位置挺好新华路上的,市区还离山顶公园近,以后发展升值更大
  • - 78 - 急售|2014/2/4 19:36:00
    出售88平方两室两厅、好户型电话15037529100
我要点评
昵称: 匿名
内容:
验证码:验证码,看不清楚?请点击刷新验证码

( 注:网友评论仅供其表达个人看法,并不表明平顶山楼市网同意其观点或证实其描述。)
*《互联网电子公告服务管理规定》*《全国人大常委会关于维护互联网安全的规定》
  不得利用本站危害国家安全、泄露国家秘密,不得侵犯国家社会集体的和公民的合法权益, 不得利用本站制作、复制和传播下列信息:
 ①.煽动抗拒、破坏宪法和法律、行政法规实施的; ②.煽动颠覆国家政权,推翻社会主义制度的;
 ③.煽动分裂国家、破坏国家统一的; ④.煽动民族仇恨、民族歧视,破坏民族团结的;
 ⑤.任何包含对种族、性别、宗教、地域内容等歧视的 ⑥.捏造或者歪曲事实,散布谣言,扰乱社会秩序的;
 ⑦.宣扬封建迷信、淫秽、色情、赌博、暴力、凶杀、恐怖、教唆犯罪的;
 ⑧.公然侮辱他人或者捏造事实诽谤他人的,或者进行其他恶意攻击的;
 ⑨.损害国家机关信誉的; ⑩.其他违反宪法和法律行政法规的。